Casa semindipendente in vendita

Viù, Frazione aires - Aires
€ 25.000
2 locali 2 locali
70 Mq 70 Mq

Casa semindipendente in vendita

Viù, Frazione aires - Aires

Descrizione annuncio

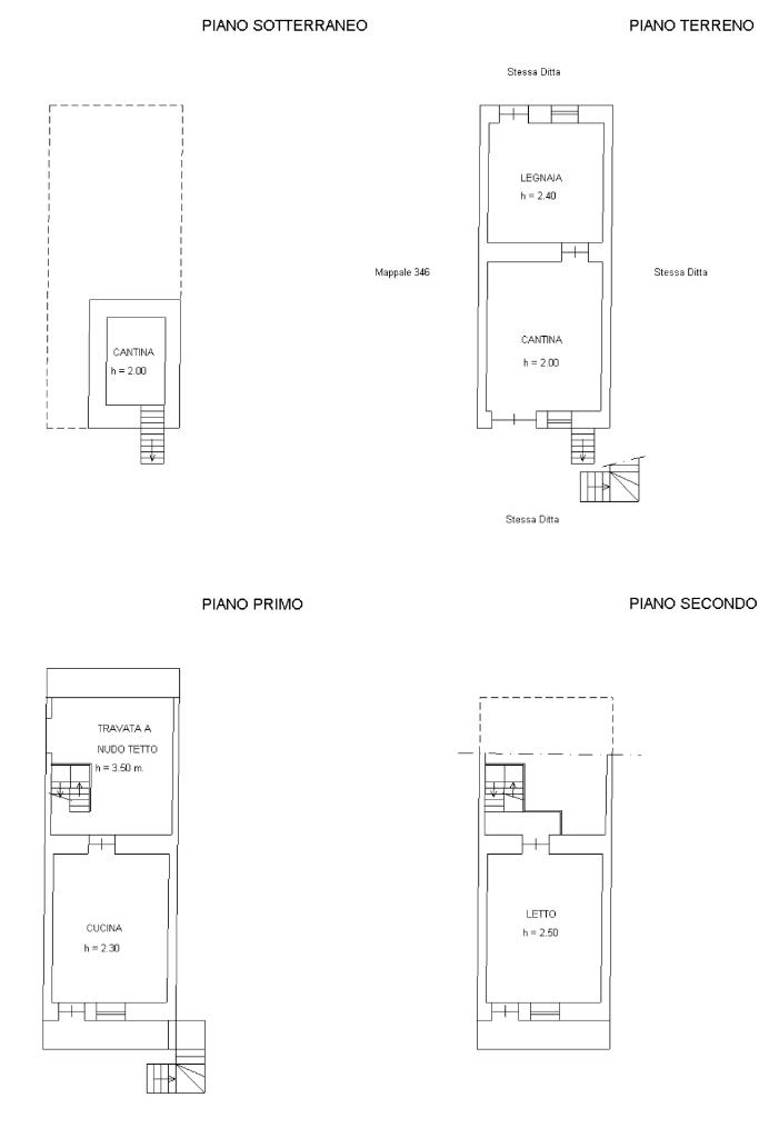
Frazione Aires, a circa 5 chilometri dal centro del paese di viù porzione di fabbricato da ristrutturare.
Il Fabbricato attualmente si presenta allo stato grezzo, nel quale al piano terreno è presente una cantina, tramite la scala esterna si accede al piano primo dove si può realizzare la cucina, tramite un ulteriore scala esterna si accede al sottotetto il quale attualmente è privo di impianti.
La macchina si può lasciare nel parcheggio di frazione a circa 300 metri dal fabbricato.


Mostra tutto

Nelle vicinanze

Trasporto pubblico Trasporto pubblico
Viu' (Mondrezza)
Viu' (Mondrezza)
670 m
Viu' (loc. Porte)
Viu' (loc. Porte)
740 m
Ricariche auto elettriche Ricariche auto elettriche
Viù Santuario | EnelX
1,3 Km
Scuole Scuole
Scuole
990 m
Farmacia Farmacia
Farmacia Bruno
1,1 Km
Negozi Negozi
Gratasole
1,1 Km
Negozi
1,2 Km
Enrico Calzature
1,2 Km
Minimarket
1,3 Km
Bar Bar
Belle Epoque
1,1 Km
Garden Bar
1,1 Km
La Cuccagna
1,2 Km
Ristoranti Ristoranti
Vertical Blu
560 m
Osteria dello Stambecco
1,0 Km
Ristorante Moderno
1,1 Km
La Nuova Cà Bassa
1,1 Km
Trattoria-bar Lou Sulè
1,3 Km
Mostra tutto

Caratteristiche

Rif.:
61038601
Piano:
1 di 3 (Piano su più livelli)
Balconi:
1
Camere da letto:
1
Arredamento:
Assente
Condizionamento:
Assente
Mostra tutto
Prezzo Prezzo
€ 25.000
Rata mutuo Rata mutuo
€ 119 / mese
Spese annue Spese annue
€ 10
Proponi il tuo prezzoProponi il tuo prezzo

Classe Energetica

G
G
G
G
G
G
G
G
G
EP globale non rinnovabile:
402.54 kW h/m² anno
EP globale rinnovabile:
0.00 kW h/m² anno
EP invernale del fabbricato:
EP estiva del fabbricato:
Anno di costruzione:
1900
Riscaldamento:
Autonomo
Tipo impianto:
Ad aria
Tipo alimentazione:
Aria

Ti interessa visionare l'immobile?

Fissa un appuntamento  Fissa un appuntamento

Richiedi informazioni

Clicca su Leggi per aprire l'informativa
* Questi campi sono obbligatori

Calcola il tuo mutuo

Semplice e senza impegno
Anticipo

( % )
Mutuo

( % )

pochi semplici passi

inserisci i tuoi dati
Questionario completato
Grazie per aver richiesto un appuntamento senza impegno con un nostro Consulente del Credito e Assicurativo.

Hai inserito correttamente tutti i dati necessari e a breve riceverai una e-mail con un link da convalidare per inviare i tuoi dati.
Affiliato
Immobiliare Lans Sas
Via Giacomo Matteotti, 20/B 10074 Lanzo Torinese (TO)

Il nostro staff


  • Paolo Zanuto
    Affiliato

  • Alessandro Bonioli
    Collaboratore

  • Beatrice Contucci Quintani
    Coordinatrice

  • Ludovica Ferrando
    Collaboratrice
Via Giacomo Matteotti, 20/B 10074 Lanzo Torinese (TO)
Zona: Lanzo Torinese-Valli di Viù
Mostra su mappa
Affiliato
Immobiliare Lans Sas
Via Giacomo Matteotti, 20/B 10074 Lanzo Torinese (TO)

2026 Tecnocasa Franchising S.p.A. - P. IVA 08365160152 - Via Monte Bianco 60/A 20089 Rozzano (MI). Ogni agenzia ha un proprio titolare ed è autonoma. Privacy policy | Policy utilizzo | Cookie policy