Trilocale in vendita

Traves, Via Fontana
€ 25.000
Prezzo aggiornato
3 locali 3 locali
90 Mq 90 Mq
1 bagno 1 bagno

Trilocale in vendita

Traves, Via Fontana

Descrizione annuncio

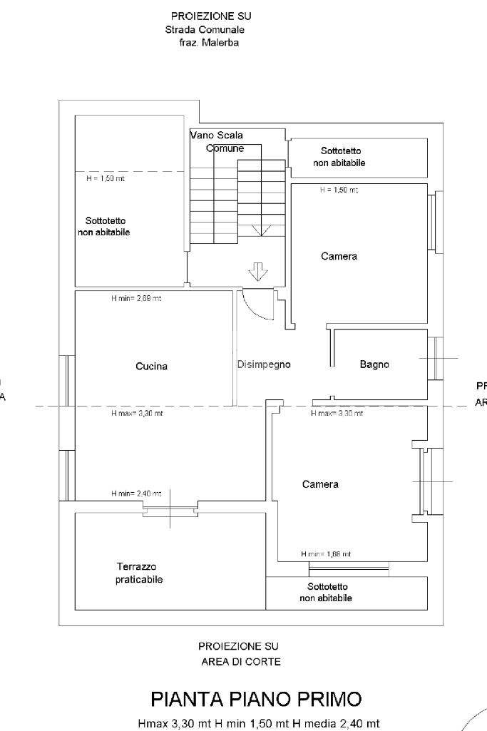
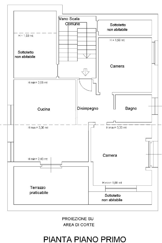
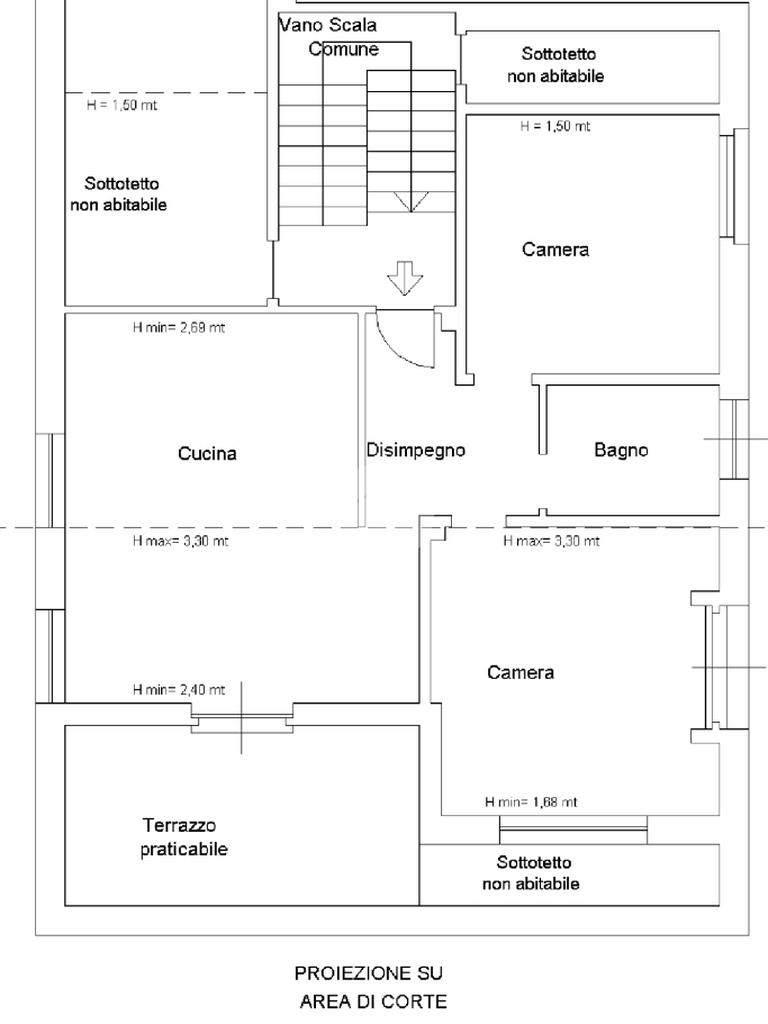
Vicino al centro del paese di Traves e comodo ai servizi situati in loco, alloggio trilocale al piano primo con terrazzo coperto e tre ambienti ad uso magazzino.

Lasciata la macchina lungo strada e passando dal cortile comune si può accedere al vano scala, da qui salendo circa 20 gradini si raggiunge il pianerottolo dell’abitazione.

Il disimpegno collega internamente tutti gli ambienti: la camera da letto matrimoniale con palchetto di legno e porta finestra; la seconda camera da letto, sempre con pavimento in palchetto di legno; il bagno finestrato con doccia e boiler elettrico; la cucina-living di generose dimensioni con allaccio alla canna fumaria e accesso al terrazzo coperto ad uso esclusivo.

Concludono la vendita gli ambienti ad uso magazzino.

L’alloggio è stato locato fino a settembre 2025; il bagno e l’impianto elettrico sono stati interamente ristrutturati nel corso del 2023.

Il riscaldamento risulta gestibile in maniera autonoma: grazie alla presenza di una canna fumaria indipendente è possibile installare stufe a legna/pellet per poter riscaldare l’unità.

Il fabbricato è composto da quattro unità immobiliari, tuttavia non sono presenti spese condominiali ad eccezione della luce scale, per la quale bisogna versare €70 annui.

Per quanto riguarda le utenze di acqua (Smat) ed energia elettrica vi sono contatori autonomi e quindi sarà possibile attivare una propria utenza.

Mostra tutto

Nelle vicinanze

Trasporto pubblico Trasporto pubblico
Traves
Traves
690 m
Funghera
Funghera
1,8 Km
Traves (Rozello)
Traves (Rozello)
770 m
Germagnano (bv. Castagnole)
Germagnano (bv. Castagnole)
850 m
Farmacia Farmacia
Farmacia Cavallero Dott.ssa Cristina
380 m
Bar Bar
Holiday Night club
3,0 Km
Ristoranti Ristoranti
Trattoria Bar degli amici
120 m
Ristorante Bar Traves
430 m
Ristorante la Locanda
1,7 Km
Ristoranti
1,9 Km
Cà di Spagna
2,5 Km
Mostra tutto

Caratteristiche

Rif.:
61113599
Piano:
1 di 3 (Piano basso)
Balconi:
1
Terrazzi:
1
Camere da letto:
2
Arredamento:
Parziale
Mostra tutto
Prezzo Prezzo
€ 25.000
Rata mutuo Rata mutuo
€ 119 / mese
Spese annue Spese annue
€ 70
Proponi il tuo prezzoProponi il tuo prezzo

Classe Energetica

F
F
F
F
F
F
F
F
F
EP globale non rinnovabile:
194.35 kW h/m² anno
EP globale rinnovabile:
269.85 kW h/m² anno
EP invernale del fabbricato:
EP estiva del fabbricato:
Anno di costruzione:
1960
Riscaldamento:
Autonomo
Tipo impianto:
A stufa
Tipo alimentazione:
Altro

Prezzo ridotto di €1 (17%%)

Ti interessa visionare l'immobile?

Fissa un appuntamento  Fissa un appuntamento

Richiedi informazioni

Clicca su Leggi per aprire l'informativa
* Questi campi sono obbligatori

Calcola il tuo mutuo

Semplice e senza impegno
Anticipo

( % )
Mutuo

( % )

pochi semplici passi

inserisci i tuoi dati
Questionario completato
Grazie per aver richiesto un appuntamento senza impegno con un nostro Consulente del Credito e Assicurativo.

Hai inserito correttamente tutti i dati necessari e a breve riceverai una e-mail con un link da convalidare per inviare i tuoi dati.
Affiliato
Immobiliare Lans Sas
Via Giacomo Matteotti, 20/B 10074 Lanzo Torinese (TO)

Il nostro staff


  • Paolo Zanuto
    Affiliato

  • Alessandro Bonioli
    Collaboratore

  • Beatrice Contucci Quintani
    Coordinatrice

  • Ludovica Ferrando
    Collaboratrice
Via Giacomo Matteotti, 20/B 10074 Lanzo Torinese (TO)
Zona: Lanzo Torinese-Valli di Viù
Mostra su mappa
Affiliato
Immobiliare Lans Sas
Via Giacomo Matteotti, 20/B 10074 Lanzo Torinese (TO)

2026 Tecnocasa Franchising S.p.A. - P. IVA 08365160152 - Via Monte Bianco 60/A 20089 Rozzano (MI). Ogni agenzia ha un proprio titolare ed è autonoma. Privacy policy | Policy utilizzo | Cookie policy