Casa semindipendente in vendita

Corio, Strada buretta
€ 35.000
5 locali 5 locali
200 Mq 200 Mq
1 bagno 1 bagno

Casa semindipendente in vendita

Corio, Strada buretta

Descrizione annuncio

Nella zona tranquilla e soleggiata di Benne di Corio rustico da ristrutturare su tre livelli.
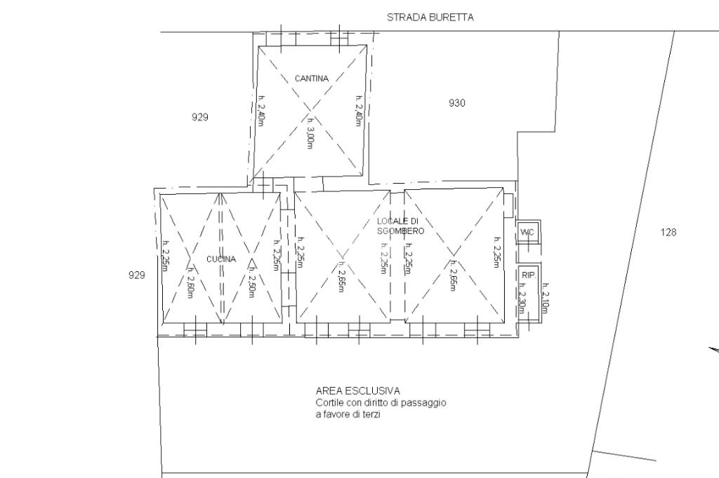
Al piano terra si trovano i locali di sgombero ad uso cantina, con una canna fumaria da rivedere. L’accesso al piano primo avviene attualmente tramite una scala a pioli che porta al balcone, in quanto non è presente un collegamento interno tra i due livelli.
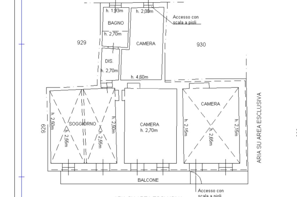
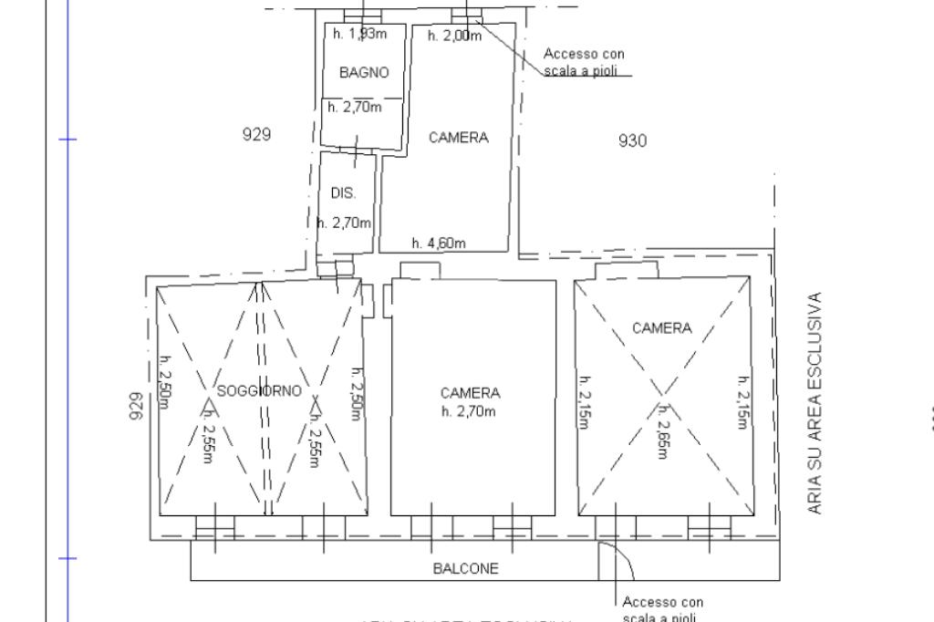
Al primo piano si sviluppa la zona giorno, con gli allacci già predisposti per la cucina.
Sono stati effettuati lavori di ristrutturazione che hanno interessato anche il bagno finestrato, dotato di vasca, e l’antibagno adiacente.
Sullo stesso piano si trovano due camere da letto non comunicanti tra loro; è inoltre possibile ricavare un secondo bagno grazie allo spazio già predisposto. Il tetto è in buone condizioni ed è realizzato in tegole di cemento. L’immobile è collegato alle reti del metano e dell’acqua, anche se le utenze risultano attualmente staccate. Completa la proprietà un cortile con diritto di passaggio a favore di terzi.

Mostra tutto

Nelle vicinanze

Farmacia Farmacia
Farmacia
2,7 Km
Mostra tutto

Caratteristiche

Rif.:
61160752
Piano:
3 di 3 (Piano su più livelli)
Balconi:
1
Camere da letto:
2
Arredamento:
Assente
Condizionamento:
Assente
Mostra tutto
Prezzo Prezzo
€ 35.000
Rata mutuo Rata mutuo
€ 162 / mese
Spese annue Spese annue
€ 10
Proponi il tuo prezzoProponi il tuo prezzo

Classe Energetica

E
E
E
E
E
E
E
E
E
EP globale non rinnovabile:
15046.00 kW h/m² anno
EP globale rinnovabile:
48194.00 kW h/m² anno
EP invernale del fabbricato:
EP estiva del fabbricato:
Anno di costruzione:
1900
Riscaldamento:
Autonomo
Tipo impianto:
A stufa
Tipo alimentazione:
Aria

Ti interessa visionare l'immobile?

Fissa un appuntamento  Fissa un appuntamento

Richiedi informazioni

Clicca su Leggi per aprire l'informativa
* Questi campi sono obbligatori

Calcola il tuo mutuo

Semplice e senza impegno
Anticipo

( % )
Mutuo

( % )

pochi semplici passi

inserisci i tuoi dati
Questionario completato
Grazie per aver richiesto un appuntamento senza impegno con un nostro Consulente del Credito e Assicurativo.

Hai inserito correttamente tutti i dati necessari e a breve riceverai una e-mail con un link da convalidare per inviare i tuoi dati.
Affiliato
Immobiliare Lans Sas
Via Giacomo Matteotti, 20/B 10074 Lanzo Torinese (TO)

Il nostro staff


  • Paolo Zanuto
    Affiliato

  • Alessandro Bonioli
    Collaboratore

  • Beatrice Contucci Quintani
    Coordinatrice

  • Ludovica Ferrando
    Collaboratrice
Via Giacomo Matteotti, 20/B 10074 Lanzo Torinese (TO)
Zona: Lanzo Torinese-Valli di Viù
Mostra su mappa
Affiliato
Immobiliare Lans Sas
Via Giacomo Matteotti, 20/B 10074 Lanzo Torinese (TO)

2026 Tecnocasa Franchising S.p.A. - P. IVA 08365160152 - Via Monte Bianco 60/A 20089 Rozzano (MI). Ogni agenzia ha un proprio titolare ed è autonoma. Privacy policy | Policy utilizzo | Cookie policy